Rénovation intérieure – Sanary

Projet
Publié le: 04-11-2025

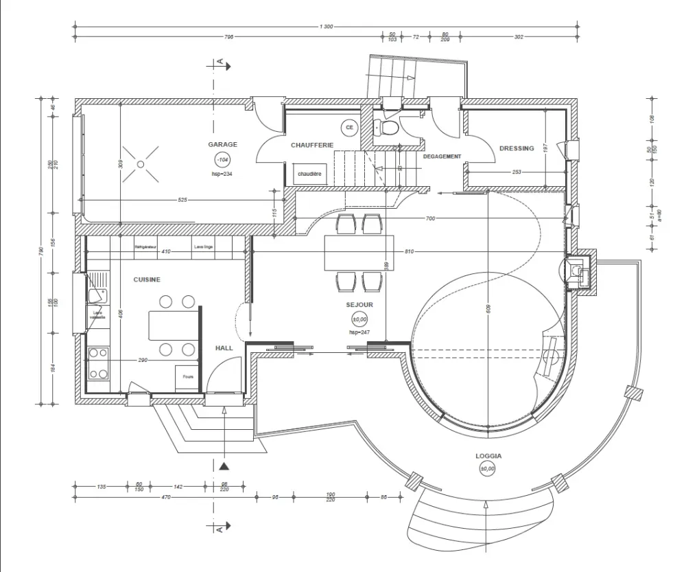
Jeu de courbes et de lumière pour un espace d’exception

Création d’un séjour circulaire au design unique, où murs et vitrages courbes redéfinissent l’espace.
Un projet mêlant technicité et élégance, pour une architecture fluide, lumineuse et contemporaine.

Projet

Articles similaires